Beschreibung
Die zum Verkauf stehende Gewerbeimmobilie in der Sinkenbreite 8 in Berghülen umfasst eine funktional ausgestattete Gewerbehalle mit angeschlossenem Bürogebäude sowie eine großzügige Außenfläche. Das Objekt befindet sich in einem etablierten Gewerbegebiet und eignet sich ideal für Gewerbetreibende, Handwerks- und Produktionsbetriebe, die Wert auf eine vielseitig nutzbare Betriebsstätte legen.
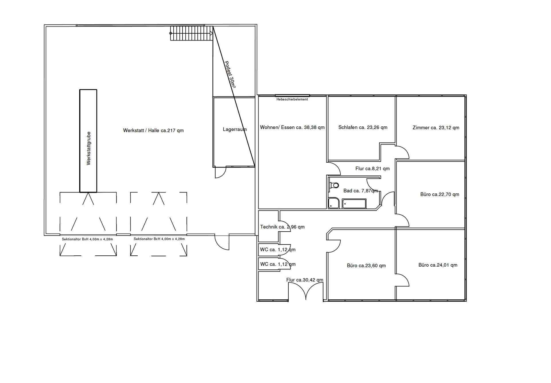
Die Halle bietet durch ihre Ausstattung flexible Nutzungsmöglichkeiten. Neben einer integrierten Werkstattgrube verfügt sie über eine Kranbahn mit einer Nutzlast von bis zu 10 Tonnen, wodurch insbesondere Betriebe mit erhöhtem Maschinen- oder Materialumschlag angesprochen werden. Die Anlieferung erfolgt über Sektionaltore mit einer Höhe von ca. 4,28 m und ermöglicht eine effiziente und komfortable Andienung.
Das Bürogebäude ist funktional gegliedert und teilt sich in zwei separate Einheiten mit ca. 112 m² und 92 m² Nutzfläche auf. Die Erschließung erfolgt über einen Eingangsbereich mit Empfang, von dem aus die Büroräume erreichbar sind. Ergänzt wird der Bürobereich durch WC-Anlagen sowie eine Mitarbeiterküche, wodurch eine angenehme und praxisgerechte Arbeitsumgebung gegeben ist.
Ein wesentliches Merkmal der Liegenschaft ist das großzügige Grundstück mit einer Fläche von ca. 3.511 m². Dieses bietet neben ausreichend Außen- und Stellflächen auch Potenzial für Erweiterungen oder zusätzliche Nutzungen und unterstreicht den langfristigen Entwicklungscharakter der Immobilie.
Die Immobilie ist verkehrsgünstig gelegen und gut an das regionale Verkehrsnetz angebunden. Insgesamt handelt es sich um eine gepflegte und nachhaltig nutzbare Gewerbeimmobilie mit stabiler Substanz und vielfältigen Nutzungsmöglichkeiten, die sowohl für Eigennutzer als auch für Kapitalanleger eine interessante Investitionsmöglichkeit darstellt.
Ausstattung
Lage
Die Gewerbeimmobilie befindet sich im Gewerbegebiet von Berghülen, einer Gemeinde im Alb-Donau-Kreis in Baden-Württemberg. Berghülen liegt verkehrsgünstig zwischen den süddeutschen Metropolen Stuttgart und Ulm und bietet damit eine attraktive Lage für regional und überregional tätige Unternehmen.
Die Anbindung an das überregionale Straßennetz ist sehr gut. Über die nahegelegenen Autobahnen A8 und A7, erreichbar unter anderem über das Autobahnkreuz Elchingen, besteht ein direkter Anschluss an die A3 sowie an die A81 und weitere wichtige Verkehrsachsen. Dadurch sind sowohl die Ballungsräume als auch überregionale Wirtschaftszentren schnell und effizient erreichbar.
Das Umfeld ist geprägt von gewerblicher Nutzung und bietet ideale Voraussetzungen für Betriebe, die eine gut erreichbare Lage mit funktionalem Gewerbeumfeld schätzen.
Sonstiges