Beschreibung
Zur Vermietung steht eine attraktive Neubau-Einzelhandelsfläche mit ca. 474 m² im Erdgeschoss eines hochwertigen, gemischt genutzten Quartiersneubaus in Freiburg-St. Georgen.
Die Fläche befindet sich innerhalb eines architektonisch anspruchsvollen Neubauensembles mit moderner, urbaner Gestaltung und profitiert von einer markanten Erdgeschosslage innerhalb des Gesamtprojekts. Durch die großzügigen Schaufensterfronten sowie die repräsentative Positionierung innerhalb des Erdgeschosses bietet die Einheit eine ausgezeichnete Visibilität und ideale Voraussetzungen für eine nachhaltige Einzelhandelsnutzung.
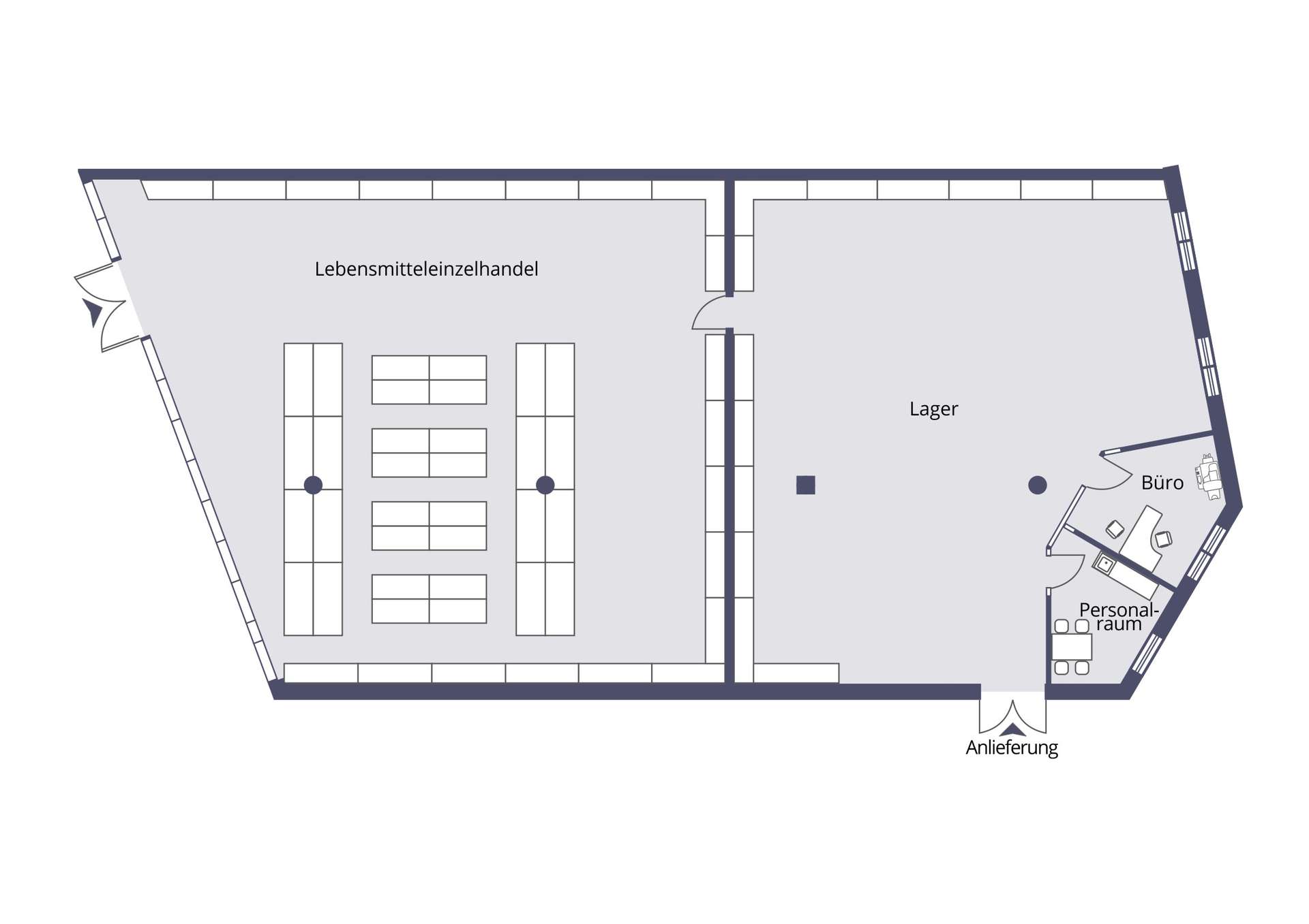
Der durchdachte Grundriss ermöglicht eine flexible Flächenkonzeption und umfasst neben der großzügigen Verkaufsfläche einen separaten Lagerbereich, Büro-/Verwaltungsflächen, Personalraum sowie eine eigene Anlieferungsmöglichkeit. Hierdurch eignet sich die Einheit ideal für klassische Einzelhandelskonzepte, Nahversorgungsangebote, Fachmärkte oder ergänzende quartierbezogene Nutzungskonzepte.
Das Gesamtprojekt schafft durch die Kombination aus Wohnen, Gewerbe und Dienstleistung ein modernes, urbanes Umfeld mit langfristig stabilem Nutzerpotenzial. Bereits feststehende Mieter im Erdgeschoss sind ein Fitnessstudio, eine Kieferorthopädiepraxis sowie eine Zahnarztpraxis. Ergänzend ist die Ansiedlung einer Apotheke bzw. weiterer quartiersergänzender Einzelhandels- oder Dienstleistungsnutzungen vorgesehen, wodurch ein lebendiges, synergetisches Nutzungskonzept mit attraktiver Kundenstruktur entsteht.
Die Fläche bietet somit ideale Voraussetzungen für Unternehmen, die sich in einem hochwertigen Neubauquartier mit langfristiger Entwicklungsperspektive positionieren möchten.
Ausstattung
Lage
Das Neubauprojekt UNSR St. Georgen befindet sich in attraktiver Lage im Freiburger Stadtteil St. Georgen, einem der gefragten südlichen Stadtteile der Stadt. Der Standort verbindet eine sehr gute infrastrukturelle Anbindung mit einem gewachsenen Wohn- und Geschäftsumfeld und bietet damit ideale Voraussetzungen für eine nachhaltige gewerbliche Nutzung.
Die Basler Landstraße als eine der zentralen Verkehrsachsen im Freiburger Süden sorgt für eine ausgezeichnete Wahrnehmbarkeit und eine komfortable Erreichbarkeit. Sowohl der Individualverkehr als auch der öffentliche Nahverkehr sind optimal angebunden. Eine Bushaltestelle befindet sich unmittelbar am Objekt, zudem besteht über die nahegelegene Rheintalbahn-Station eine schnelle Verbindung in die Freiburger Innenstadt sowie in die umliegenden Regionen. Auch die Anbindung an die Autobahn A5 ist in kurzer Fahrzeit erreichbar.
St. Georgen selbst steht für einen lebendigen und zugleich gewachsenen Stadtteil mit hoher Wohnqualität, stabiler Bevölkerungsstruktur und einer gut ausgebauten Nahversorgung. Schulen, Kindergärten, Einkaufsmöglichkeiten, gastronomische Angebote sowie verschiedene Freizeit- und Sporteinrichtungen prägen das Umfeld und unterstreichen die Attraktivität des Standorts im täglichen Leben.
Gerade die Verbindung aus Wohnen, Arbeiten, medizinischer Versorgung und ergänzendem Einzelhandel macht das Projekt besonders interessant. Das Quartier schafft ein modernes, urbanes Umfeld mit vielfältigen Synergien und spricht sowohl die Bewohner des direkten Umfelds als auch Besucher und Kunden aus dem erweiterten Einzugsgebiet an.
Sonstiges