Beschreibung
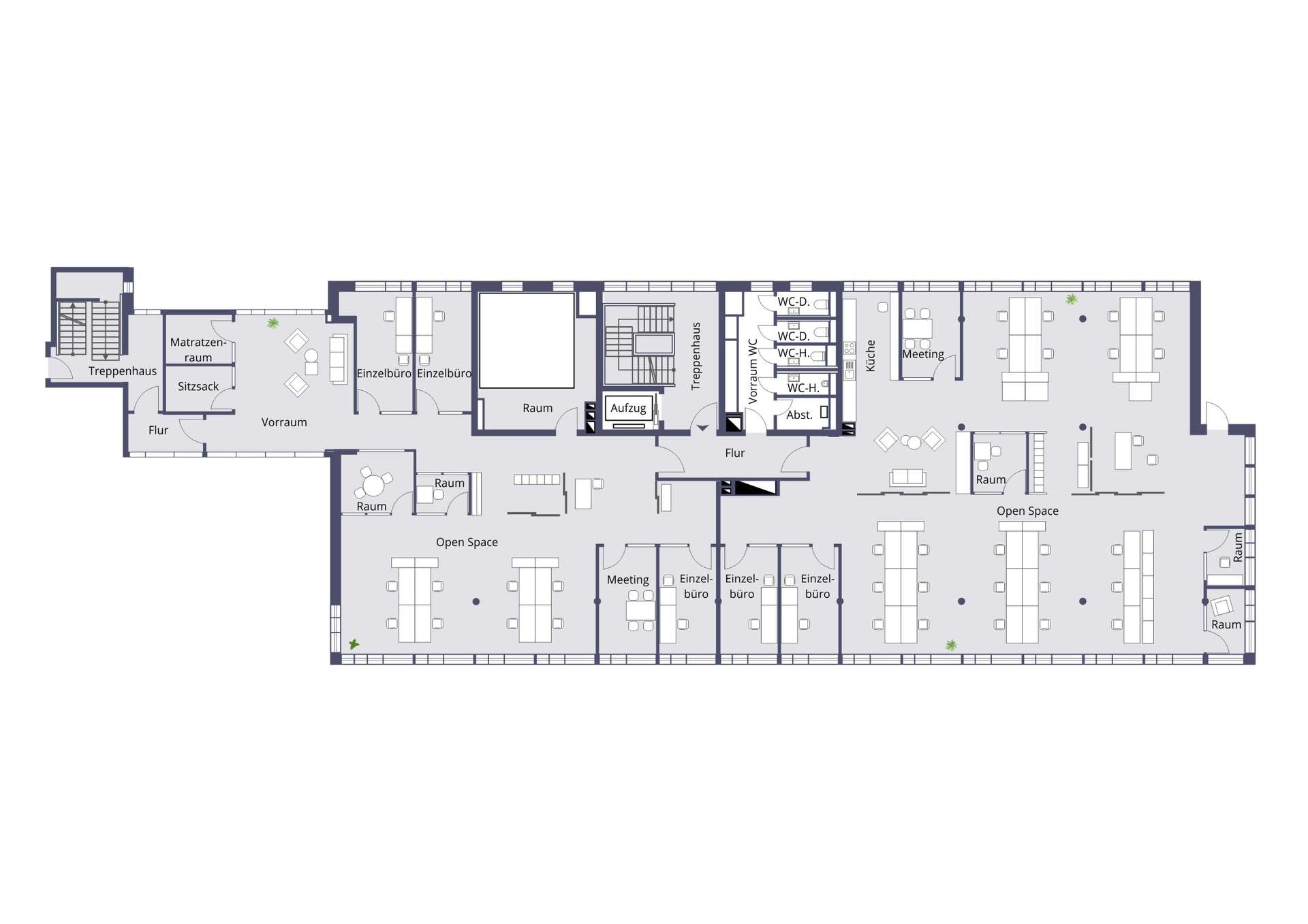
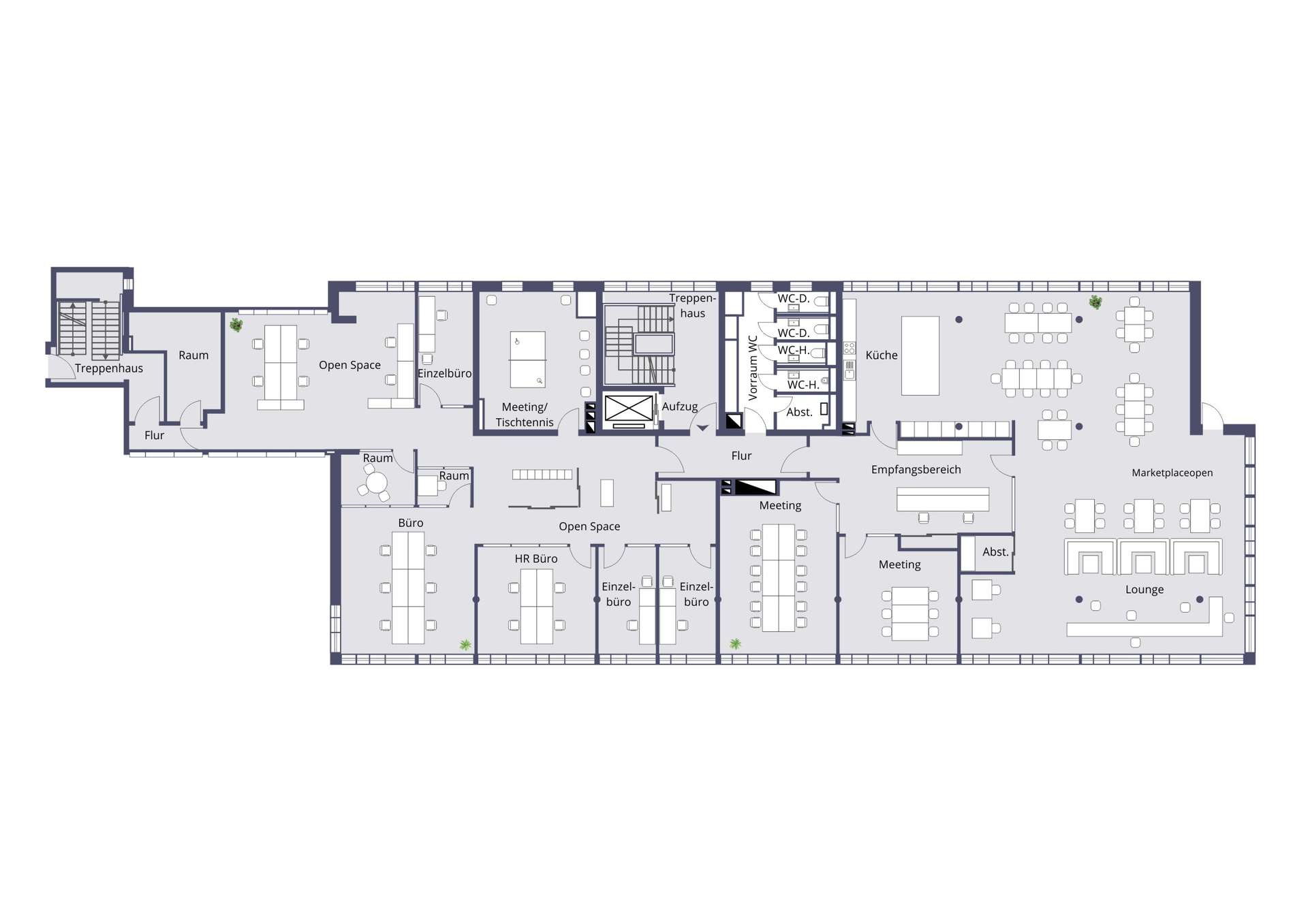
Die zur Vermietung stehenden Büroflächen im Bauteil B der „Green City Offices“ befinden sich im 5. und 6. Obergeschoss und bieten auf zwei nahezu identischen Ebenen insgesamt rund 1.413 qm moderne, flexibel nutzbare Bürofläche. Das 5. Obergeschoss umfasst ca. 707 qm, das 6. Obergeschoss ca. 706 qm. Die Flächen können zusammenhängend oder separat angemietet werden und eignen sich sowohl für größere zusammenhängende Büroeinheiten als auch für eigenständige Unternehmensstandorte pro Etage.
Die Grundrisse zeichnen sich durch ihre großzügige, effiziente Flächenstruktur aus und bieten ideale Voraussetzungen für zeitgemäße Arbeitswelten. Ob offene Open-Space-Konzepte, klassische Einzel- und Doppelbüros, Meetingräume, Rückzugsbereiche oder kommunikative Zonen – die Flächen lassen sich flexibel und individuell an unterschiedliche Nutzungskonzepte anpassen. Ergänzt werden die Bürobereiche durch funktional angeordnete Nebenflächen wie Besprechungsräume, Teeküchen, Sanitärbereiche sowie Empfangs- und Kommunikationszonen.
Großzügige Fensterflächen sorgen für eine sehr gute natürliche Belichtung und schaffen eine helle, angenehme Arbeitsatmosphäre. Die oberen Geschosse bieten zudem einen attraktiven Ausblick auf das umliegende Quartier und unterstreichen den repräsentativen Charakter der Flächen.
Die Green City Offices stehen für moderne Architektur, hohe Aufenthaltsqualität und nachhaltiges Bauen. Das Gebäude ist Teil des zukunftsorientierten Güterbahnhofareals, das sich in den vergangenen Jahren zu einem der gefragtesten Bürostandorte Freiburgs entwickelt hat. Die Mischung aus etablierten Unternehmen, innovativen Dienstleistern und urbaner Infrastruktur schafft ein inspirierendes Umfeld für produktives Arbeiten.
Der Standort überzeugt durch seine hervorragende Erreichbarkeit: Der Anschluss an den öffentlichen Nahverkehr ist optimal, der Freiburger Hauptbahnhof sowie die Innenstadt sind in wenigen Minuten erreichbar. Auch die überregionale Anbindung ist ausgezeichnet.
Mit seiner energieeffizienten Bauweise und dem nachhaltigen Gesamtkonzept fügt sich Bauteil B der Green City Offices konsequent in das Freiburger Leitbild der „Green City“ ein und bietet Unternehmen ein zukunftsfähiges, ökologisch orientiertes und zugleich repräsentatives Arbeitsumfeld.
Ausstattung
Lage
Die „Green City Offices“ befinden sich im aufstrebenden Güterbahnhofareal im nördlichen Zentrum von Freiburg – einem Stadtquartier, das in den vergangenen Jahren eine beeindruckende Entwicklung vollzogen hat. Das ehemalige Bahngelände hat sich zu einem lebendigen, urbanen Umfeld gewandelt, in dem Arbeiten, Wohnen und Freizeit zeitgemäß miteinander verbunden sind. Die Umgebung ist geprägt von moderner Architektur, hochwertigen Neubauten sowie einem vielfältigen Angebot an Dienstleistungs-, Gastronomie- und Versorgungsmöglichkeiten. Zahlreiche innovative Unternehmen, Start-ups, Agenturen und kreative Dienstleister haben sich hier bereits angesiedelt und schätzen die dynamische, zukunftsorientierte Atmosphäre des Quartiers.
Der Standort überzeugt durch seine ausgezeichnete Verkehrsanbindung. Der Freiburger Hauptbahnhof ist in wenigen Minuten erreichbar, ebenso mehrere Straßenbahn- und Bushaltestellen mit direkter Verbindung in alle Stadtteile. Auch für den Individualverkehr ist die Lage optimal: Über die nahegelegene B3 sowie die A5 besteht eine schnelle Anbindung an das regionale und überregionale Straßennetz.
Mit seiner urbanen Prägung, der sehr guten infrastrukturellen Einbindung und der konsequenten Ausrichtung auf Nachhaltigkeit fügt sich der Standort der Green City Offices nahtlos in das Freiburger Stadtentwicklungskonzept ein und bietet ideale Voraussetzungen für moderne, effiziente und zukunftsfähige Arbeitswelten.
Sonstiges