Beschreibung
Zum Verkauf steht ein großzügiges Zweifamilienhaus in ruhiger Wohnlage der Gemeinde Reute bei Freiburg. Die Immobilie wurde im Jahr 1974 errichtet und bietet mit rund 200 qm Wohnfläche vielseitige Nutzungsmöglichkeiten – ideal für Mehrgenerationenwohnen, Eigennutzer mit zusätzlicher Vermietung oder auch für Kapitalanleger.
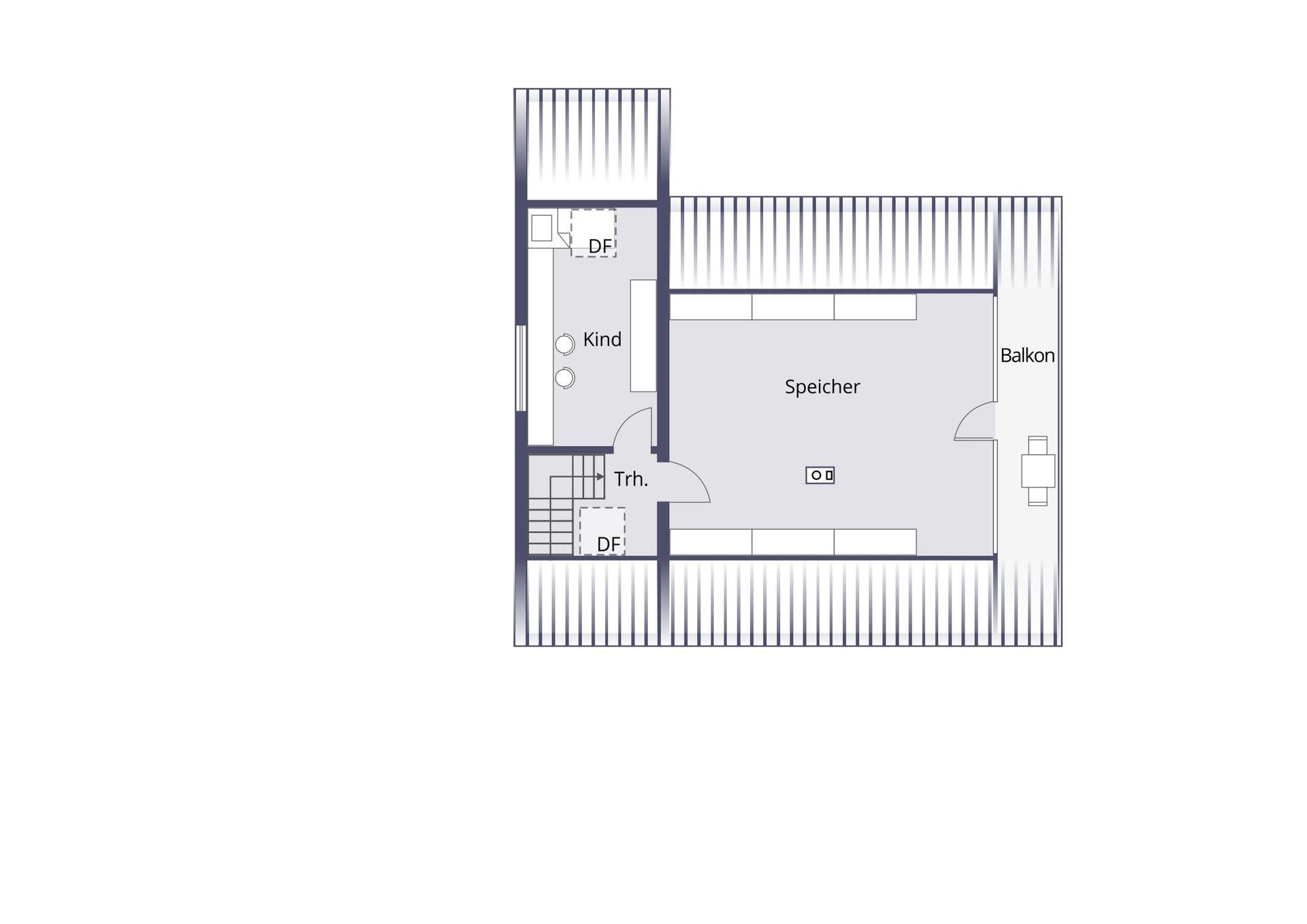
Das Haus verfügt über zwei gut geschnittene Wohneinheiten mit klassischen Grundrissen. Großzügige Wohnbereiche, separate Küchen, Schlafzimmer, Kinderzimmer sowie Balkone mit Blick in den Garten. Das Gebäude ist voll unterkellert und bietet zusätzliche Nutzflächen sowie einen Heiz- und Technikraum. Eine separate Doppelgarage ergänzt das Angebot.
Die Immobilie befindet sich insgesamt in einem renovierungsbedürftigen Zustand. Insbesondere die sanitären Einrichtungen, Bodenbeläge sowie die Balkone entsprechen nicht mehr dem heutigen Standard und sollten im Zuge einer Modernisierung erneuert werden. Dadurch eröffnet sich Käufern die Möglichkeit, das Haus nach eigenen Vorstellungen zu gestalten und an moderne Wohnansprüche anzupassen.
Das großzügige Grundstück mit Garten bietet viel Platz und Potenzial für individuelle Gestaltungsmöglichkeiten. In Kombination mit der ruhigen Lage und der Nähe zur Universitätsstadt Freiburg entsteht hier eine attraktive Gelegenheit für Käufer, die ein Haus mit Entwicklungspotenzial suchen.
Ausstattung
Lage
Die angebotene Immobilie befindet sich in ruhiger Wohnlage der Gemeinde Reute (79276) im Landkreis Emmendingen, nur wenige Kilometer nördlich von Freiburg im Breisgau. Die attraktive Lage verbindet naturnahes Wohnen mit einer sehr guten Anbindung an die wirtschaftsstarke Region Freiburg.
Reute gehört zur Verwaltungsgemeinschaft Denzlingen und zeichnet sich durch eine gewachsene Wohnstruktur, eine hohe Lebensqualität sowie eine familienfreundliche Infrastruktur aus. Einkaufsmöglichkeiten des täglichen Bedarfs, Ärzte, Apotheken sowie gastronomische Angebote befinden sich in den umliegenden Gemeinden Denzlingen, Gundelfingen und Emmendingen und sind in wenigen Fahrminuten erreichbar.
Die Universitätsstadt Freiburg im Breisgau ist nur etwa 10 bis 15 Autominuten entfernt und bietet ein umfangreiches kulturelles Angebot, vielfältige Einkaufsmöglichkeiten sowie zahlreiche Arbeitsplätze in Wirtschaft, Forschung und Verwaltung. Auch der öffentliche Nahverkehr ist gut ausgebaut. Über den nahegelegenen Bahnhof Denzlingen besteht Anschluss an den regionalen Bahnverkehr sowie an die Breisgau-S-Bahn.
Die Verkehrsanbindung ist hervorragend. Über die Bundesstraße B294 sowie die Autobahn A5 (Anschlussstelle Freiburg-Nord oder Teningen) sind sowohl Freiburg als auch die weiteren Städte der Region, beispielsweise Offenburg, Lahr oder Basel, schnell erreichbar.
Die Umgebung ist geprägt von einer attraktiven Landschaft mit Feldern, Wiesen und Naherholungsgebieten. Zahlreiche Rad- und Wanderwege sowie die Nähe zum Schwarzwald und zum Kaiserstuhl bieten einen hohen Freizeit- und Erholungswert.
Insgesamt bietet der Standort eine ideale Kombination aus ruhigem Wohnen im Grünen und der Nähe zur dynamischen Universitätsstadt Freiburg.
Sonstiges